Casa a terminar en barrio Ioppolo sobre colectora
USD 67.000 - EN VENTA
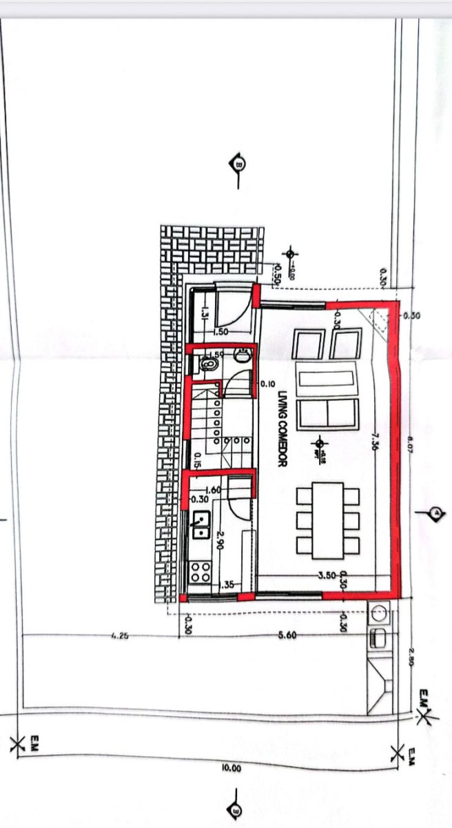
Descripción
Casa a terminar en barrio Ioppolo
Oportunidad para personalizar tu próxima casa en un dúplex 🏡. Ubicada sobre colectora asfaltada 🚗, esta propiedad combina practicidad y proyección: 335 m² de terreno (13,90 x 28) y 172 m² cubiertos para diseñar a tu gusto.
Distribución cómoda y funcional:
- Planta baja: living amplio 🛋️, cocina-comedor integrada 🍽️, toilette 🚻 y lavadero 🧺.
- Planta alta: dos dormitorios luminosos 🛏️🛏️ y un baño completo 🛁.
Conexiones y servicios listos para disfrutar: luz ⚡, agua 💧 y fibra óptica 🌐. Además, orientación este 🌅 que garantiza luz natural por la mañana.
El plus perfecto: pileta ya instalada 🏊♂️ para vivir el verano a pleno.
Ideal para quienes buscan un hogar moderno, con bases sólidas y margen para terminar con el estilo propio.
Una propuesta versátil en un entorno consolidado, con accesos ágiles y el equilibrio justo entre confort y proyección. Consultanos para conocer más y coordinar tu visita 📲.
| Detalles | |
|---|---|
| Código | KP446316 |
| Categoría | Casas |
| Estado | Activa |
| Ubicación | 1855 |
| Zona | Norte |
| Barrio | Timbúes |
| Localidad | San Lorenzo, Santa Fe |
| Tipo de operación | En venta |
| Ambientes | 5 |
| Dormitorios | 2 |
| Baños | 1 |
| Baños de servicio | 1 |
| Piso | No definido |
| Mts totales (mt²) | 335.00 |
| Mts cubiertos (mt²) | 172 |
| Tamaño terreno (mt²) | 335 |
| Ancho terreno (mts) | 13.90 |
| Largo terreno (mts) | 28 |
| Año de construcción | 2023 |
| Nueva construcción / A estrenar | 1 |